Unique 4 Bed Penthouse Condo with Private Pool and Panoramic Views at Asoke, Bangkok
$2,520,038
Nad Al Sheba - Dubai - United Arab Emirates
For Sale
$762,278













Nakheel Nad Al Sheba Villas for Sale in Dubai
Nad Al Sheba is a new villa community in Dubai by Nakheel located in 30-minute drive away from Expo 2020 site.
The area comprises 4 sub-communities, each with its own set of facilities and amenities, and features a total of 1572 units that include 4 and 5-bedroom Nad Al Sheba Villas.
The Nad Al Sheba community in Dubai has many prestigious schools, parks and a serene location away from a bustling city, which makes it perfect for a family living.
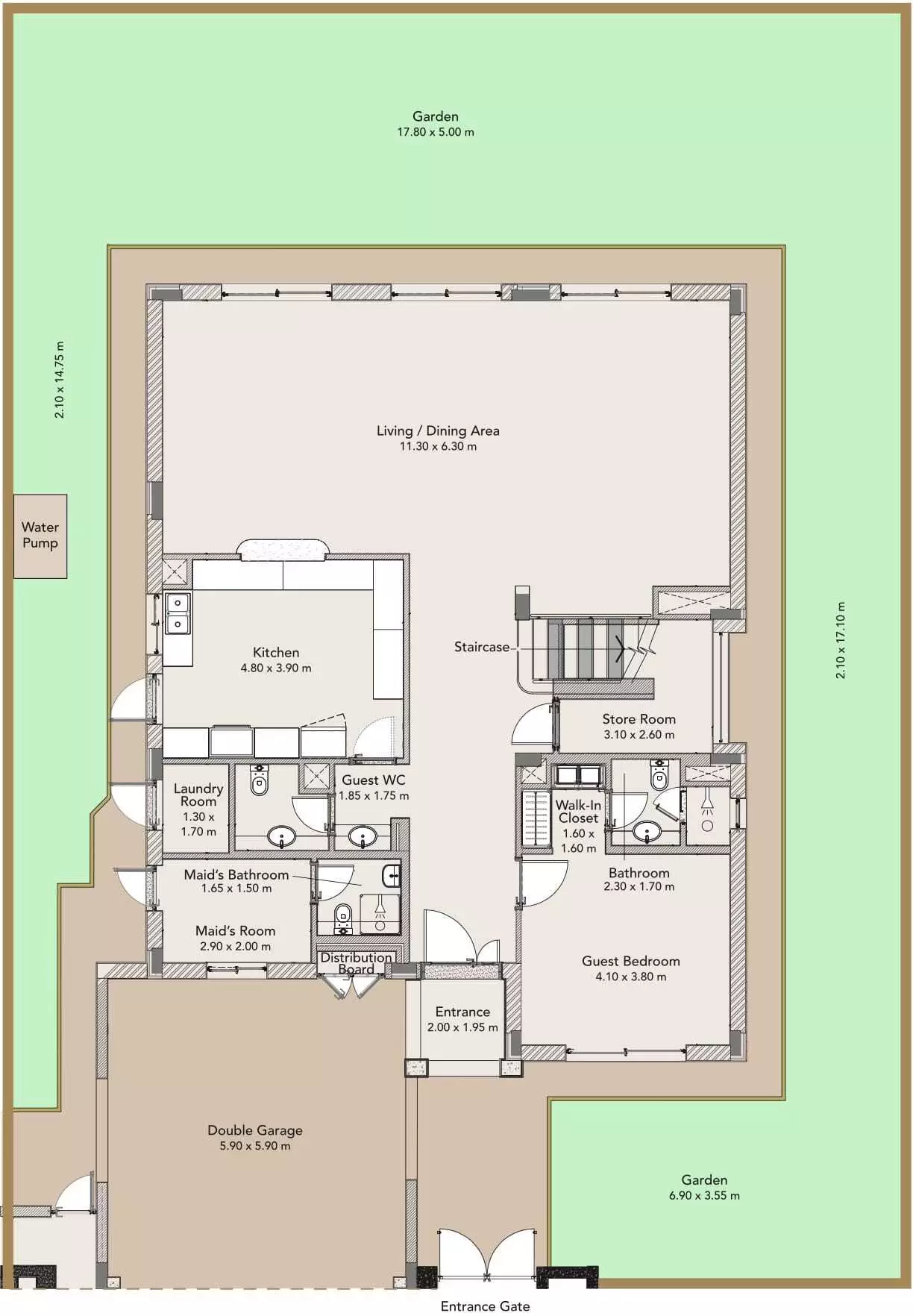
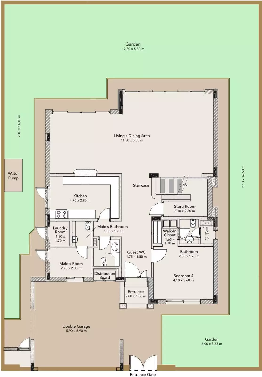
The villas for sale in Nad Al Sheba mostly have two storeys, spacious living room and dining hall, servant’s room, four to five bedrooms each with en-suite bathrooms, outside terrace and garden, and a garage for two vehicles.
Luxury villas in Nakheel Nad Al Sheba yield a relatively high return on investment. 4-bedroom villas show 3.3% ROI while 5-bedroom villas demonstrate a stable 3.7% ROI.
Dubai’s Community for Measured Living.
Villas in Nad Al Sheba community by Nakheel is connected to the rest of the city via Sheikh Zayed Road which makes traveling around Dubai fast and comfortable for residents and guests.
Nad Al Sheba is perfectly located south of Dubai Creek. In the North it borders with Al Markada (part of Bur Dubai) and Bu Kadra residential complex. In the West – with Al Quoz, known for its vibrant art community. The district is bordered by famous roads Al Hail Road and Sheikh Mohammed Bin Zayed Road – it provides an easy access to main Dubai’s attractions.
Apart from convenient location, Nad Al Sheba villas features many entertainment establishments, leisure and sport facilities of its own. This place was created for a quiet family life. The upcoming Nad Al Sheba Mall will offer over 200 retails & outlets, cafes, a cinema complex, top-class gymnasium and much more.
Moreover, the community has a 5-star hotel, a racecourse and a professional cycle track. Nad Al Sheba is also a good investment opportunity given that the area is located nearby Expo 2020.
Nakheel Nad Al Sheba is located in 30-minute drive from Dubai DXB Airport and in 45-minute from Al Maktoum DWC Airport. It takes around 25 minutes to get to Downtown Dubai, 25 minutes to Palm Jumeirah Island and 30 minutes to The Walk at Jumeirah Beach Residence (JBR). There are several bus stops and Dubai Metro station available inside the community.